
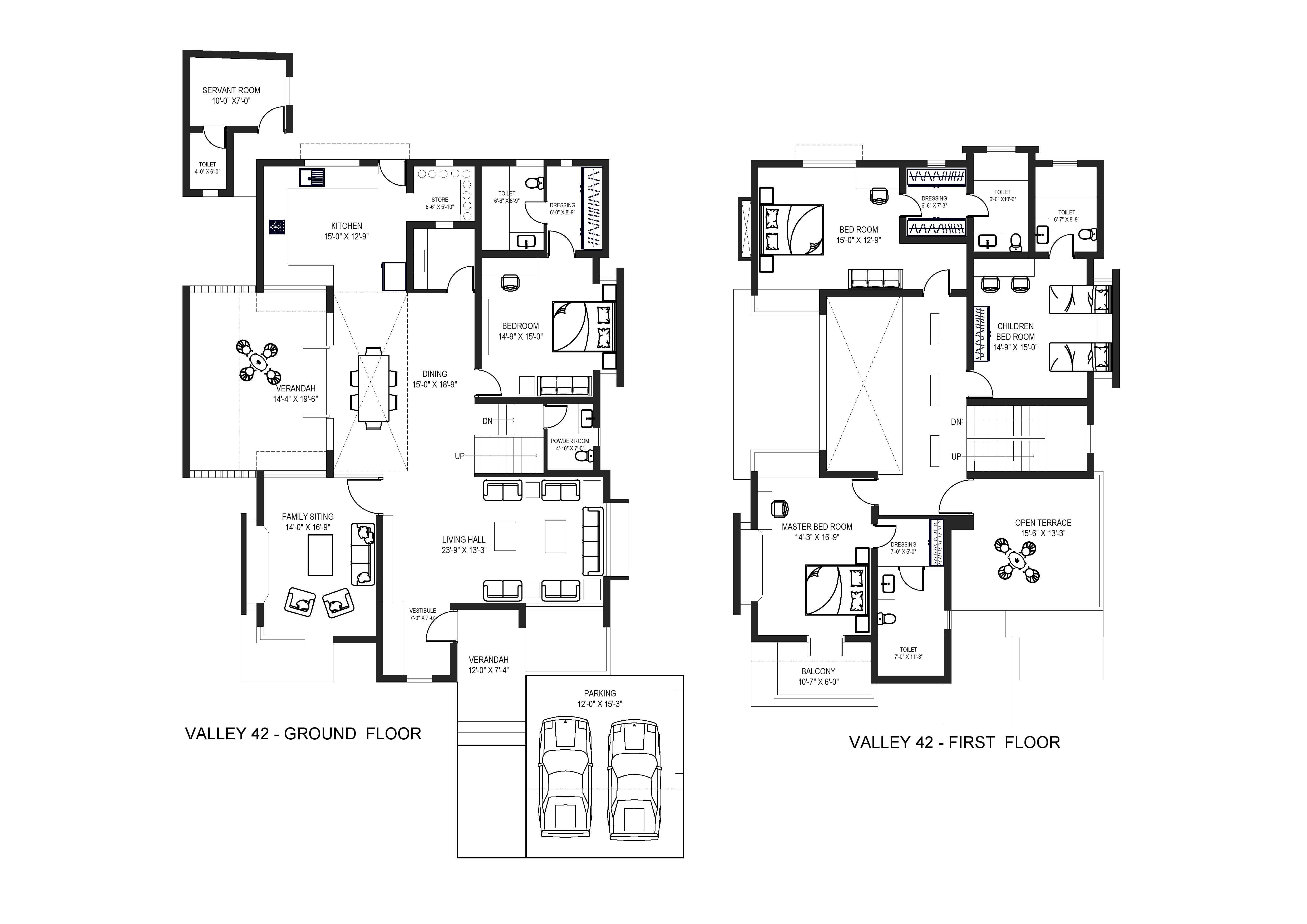
Inspired by the gracious beauty of this romantic city, The Florence's Valley 42 features clean lines and multi paned windows. Featuring 4 spacious bedrooms and 2 living rooms the Valley evokes a sense of grace and harmony allowing you to live in home you will always love.
Bedrooms with Ensuite
Walk in Pantry
Double Height celing
Valley 42
4
3
2
2
MIN. HOUSE WIDTH
42 ftMIN. HOUSE LENGTH
60 ftCONSTRUCTION AREA
4200 Sq ftMIN. LAND AREA
4000 Sq ftFEATURES
Bedrooms with Ensuite
Walk in Pantry
Double Height celing